欢迎来到南京虎恒智能科技有限公司官网!
数控生产设备,厂家直销;去中间环节,0差价
1对1方案设计,量身定做,同样面积3倍存储量
500家客户案例,工业3.0系统设计方案
全国送货上门,免费安装调试,24小时接待服务
1.交流输入电压:220V±15%,50Hz±1%,交流输入功率:100W,直流备电:DC24V/5Ah;
2.全密封免维护蓄电池使用环境温度:0℃-40℃,相对湿度:95%RH(不凝露);
3.设备符合GB4717-2005、GB16806-2006相关规定;
4.火灾报警器使用环境温度:-10℃-55℃,相对湿度:95%RH(不凝露);报警声压级:距正前方3米处:75dB,外壳防护等级为IP30;
5.放气指示灯可通过输出模块火灾报警控制器相连,由火灾报警控制器使其工作,表示气体喷洒状态,适用温度:-10℃-50℃,湿度:95%RH;
6.声光报警器启动时发出强烈的周期闪光及变调火警声,可手动紧急控制气体灭火设备和报警、指示装置,按钮带有指示灯,工作电压:DC16-32V,适用温度:-10℃-50℃;
7.包含人工安装费及相关辅材
机柜由Q235钢板制成,表面采用静电喷涂,颜色为乳白色(颜色也可根据用户要求定制)。
机柜是用来安装储瓶、连接管、启动器、喷嘴等部件,机柜底部有地脚螺栓孔供固定用。
箱体上部有进线孔,供连接外部设备用。
机柜主要技术参数:
型号 | 储存瓶 规格 | 储存瓶 数量 | 喷射时间 (s) | 喷射后 灭火剂余量 (kg) | 外形尺寸 (长×宽×高) (mm) |
GQQ150/2.5-XF | 150L | 1 | ≤10s | 0~3 | 520×550×1900 |
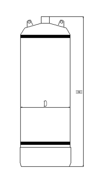
充装、封存七氟丙烷灭火剂和增压氮气。储瓶喷漆颜色为红色,有多种型号和尺寸可供选择。如图所示。

灭火剂储瓶主要技术参数:
灭火剂名称 | 七氟丙烷(HFC-227ea) |
储瓶容积(L) | 150 |
储瓶高度H(mm) | 1463 |
储瓶外径D(mm) | 400 |
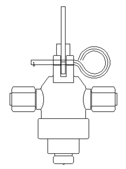
柜式容器阀:柜式容器阀是安装在灭火剂贮瓶上,用以密封贮瓶内灭火剂。火灾时,靠电磁驱动装置打开容器阀,释放灭火剂,实施灭火,如图所示。

装在储瓶中,上端螺纹与容器阀连接,用于灭火剂和增压氮气进出的管道。
如图所示。


安装在主动瓶容器阀上,电磁驱动装置上的刺刀刺破容器阀上的工作膜片,释放灭火气体。如图所示。
机械手动:拔出机械应急启动保险销,用力按下机械应急启动按钮,可实现机械手动启动。

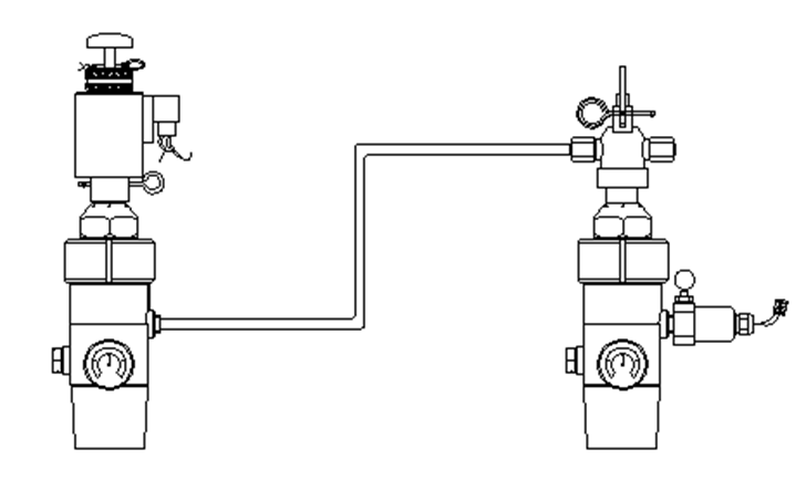
用于双瓶组或者多瓶组柜式灭火装置中,安装在从动灭火剂储瓶的容器阀上,通过启动管路与主动灭火剂储瓶的容器阀相连,由主动灭火剂储瓶驱动的气体推动装置内活塞,带动刺刀刺破容器阀上工作膜片,开启从动灭火剂储瓶。
机械手动:拉出机械应急启动保险销,压下机械应急启动手柄,可实现机械手动。

安装在容器阀上。当释放灭火剂时,管路内灭火剂压力推动信号反馈装置内的活塞使微动开关接通,反馈信号到消防控制中心,显示该防护区已释放灭火剂实施灭火。如图所示。

柜式喷嘴为全淹没喷嘴,是安装在箱体上端,用来喷射灭火剂,如图所示。

柜式喷嘴主要性能参数
储存瓶的规格 | 70L | 90L | 120L | 150L |
选用型号 | DN32 | DN32 | DN40 | DN40 |
喷孔直径(mm)数量 | 18-Φ7.5 | 18-Φ7.5 | 18-Φ9.5 | 18-Φ9.5 |
连接管用于连接柜喷嘴与容器瓶,如图所示。

柜式连接软管主要性能参数
储存瓶的规格 | 70L | 90L | 120L | 150L |
软管长度(mm) | 700 | 700 | 700 | 700 |
双(多)瓶组柜式灭火装置采用主从动启动方式,每个双(多)瓶组柜式灭火装置均有启动管路,用于主动储瓶与从动储瓶启动连接,启动管路管接件采用扩口式管接件,连接铜管直径为Φ8mm。如图所示。

025-52141002
13913802366
njhuheng@163.com
南京市江宁区横溪街道小丹阳